Logo

Favourably located plot 3a59ca, near the Sonian Forest!

€ 254.000

554

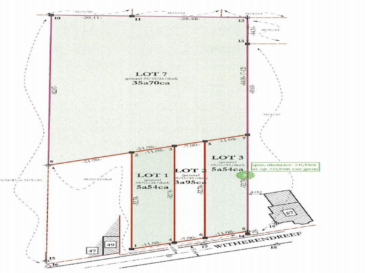
Well-located building plot with a total area of 5a54ca, very close to the Sonian Forest and the center of Jezus-Eik (public transport, schools, shops, restaurants,...) and within short distance of the Brussels Ring and the connection to the E411, yet very peaceful!

The plot is located on a quiet street in a residential area for semi-detached construction.

Subdivision regulations: street width of approx. 11.05m with a maximum facade width of 7.50m, 5m setback with a maximum of 50% of the area allowed to be paved, 3m lateral building restriction, maximum building depth of 15m for the ground floor and 12m for the first floor, basement or attic floor are possible, see construction regulations attached.

Not flood-prone (Plot score: A)

A real opportunity for building a family home in an ideal, pleasant location in a family-friendly and green environment!

General information


AddressWitherendreef 51 / (Lot 1), 3090 Overijse

Ground surface area554 m²

AvailabilityTo be established

Financial


Price€ 254.000

Building


BuildingSemi-detached

Urban planning information


Right of first refusalNo

PermitNo

SummonsNo judicial recovery measure or administrative measure

Subdivision permitYes

ZoningLiving area

Flood risk zoneNo

Designated flood zoneNo

Riverbank zoneNo

P-scoreClass A


Similar properties


Free estimationContact