Logo

Terrain à bâtir idéalement situé de 3a59ca.

€ 214.000

395

Terrain à bâtir idéalement situé, d'une superficie totale de 3a59ca, à proximité immédiate du Bois de la Cambre et du centre de Jésus-Eik (transports en commun, écoles, commerces, restaurants,...), à courte distance du Ring de Bruxelles et de l'accès à l'E411, tout en étant très calme !

Le terrain se trouve dans une rue peu fréquentée, dans une zone résidentielle pour des constructions fermées.

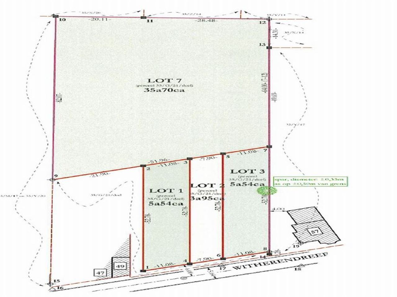
Réglementation de l'aménagement : largeur de rue d’environ 7,85 m avec une largeur de façade maximale de 7,50 m, recul de 5 m avec une surface maximale de 50 % pouvant être imperméabilisée, profondeur maximale de construction de 15 m pour le rez-de-chaussée et 12 m pour le premier étage, un sous-sol ou un étage sous toit sont possibles, voir les règlements de construction en annexe.

Non sensible aux inondations (Score du terrain : A)

Une véritable opportunité pour la construction d'une maison unifamiliale dans un emplacement idéal, agréable et dans un environnement vert et familial !

Informations générales


AdresseWitherendreef 53 / (Lot 2), 3090 Overijse

Surface du terrain395 m²

DisponibilitéÀ convenir

Financier


Prix€ 214.000

Construction


Construction2 façades

Informations urbanistiques


Droit de préemptionNon

PermisNon

CitationAucune mesure judiciaire de réparation ou mesure administrative imposée

Permis de lotissementOui

AffectationZone d'habitat

Zone à risque d'inondationNon

Zone inondable délimitéeNon

Zone rivièreNon

Score PClasse A

Partagez cette propriété


Biens similaires


Estimation gratuiteContact
Terrain à bâtir idéalement situé de 3a59ca. - IFAC Service